INDEPENDENT LIVING FLOOR PLANS
Luxury Senior Residence Floor Plans
The 850-square-foot Egret offers an interconnected living and dining area that seamlessly extends into a sun-soaked Florida room. The private bedroom suite boasts a full bath, a spacious walk-in closet and convenient laundry access.
In the 1,000-square-foot Curlew, discover a beckoning Florida room off an open living space and ideally sized kitchen. This residence also boasts ample storage, a large closet and spacious bathroom.
Create your own serene retreat in the 1,200-square-foot Heron. This home boasts a large living and dining area, expansive Florida room accessible from all spaces and two bedrooms with separate baths.
A gracious living and dining area flows into the kitchen and a light-filled Florida room in the 1,350-square-foot Crane. Two bedrooms on either side of the main living area, each with its own bath, create dual private retreats.
Find two incredible Florida rooms in the 1,450-square-foot Sabal. The private main bedroom suite brings views to you, and the second bedroom offers a hall-access bath. An airy living area connects the home for a convenient layout.
Choose the 1,500-square-foot Windmill and have all you need. Two bedrooms, two bathrooms and ample closet space flank the open living and dining room. An expansive Florida room brings the outside to you.
For flexible space, look no further than the 1,650-square-foot Royal with Den. This home boasts a kitchen, connected dining and living room, private den, two bedrooms, two bathrooms and two Florida rooms.
Find your home in Willow’s 1,688 square feet with two bedroom suites plus a powder room. An open-concept kitchen and living space are at the heart of the home, and a generous patio offers an inviting outdoor living area.
A private entryway brings you into the 1,750-square-foot Villa. From there, discover a study and the main living space that connects the dining and kitchen areas. Two bedrooms, two baths and a garage complete the home.
The 1,794-square-foot Magnolia boasts a covered entry into the open-concept living and kitchen area with private patio access. Alongside, you’ll find two bedroom suites, a powder room, a laundry and garage.
Enjoy a spacious abode with the 1,850-square-foot Osprey. A generous primary suite and additional bedroom nestle alongside a right-size kitchen and an open, airy living and dining space that spills into a sitting room.
The 1,850-square-foot Osprey split features two bedrooms and 2.5 bathrooms flanking the main living spaces. From the entryway, an expansive living room offers an inviting atmosphere and connects to the spacious kitchen and sun-filled Florida room.
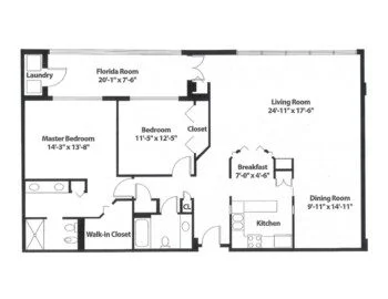
This grand 1,850 Osprey (Master) showcases large living and dining spaces surrounding a modern kitchen and breakfast nook. A large Florida room sits adjacent both bedrooms providing easy access. Two full bathrooms and ample closet space round out this luxurious apartment home.
Enter the formal foyer of the 1,950-square-foot Villa Deluxe, and be drawn into the truly great room and enticing screen porch beyond. Two bedrooms, two bathrooms, a den, formal dining room and garage complete the home.
Luxury Senior Housing Floor Plan Features
See the Details



































